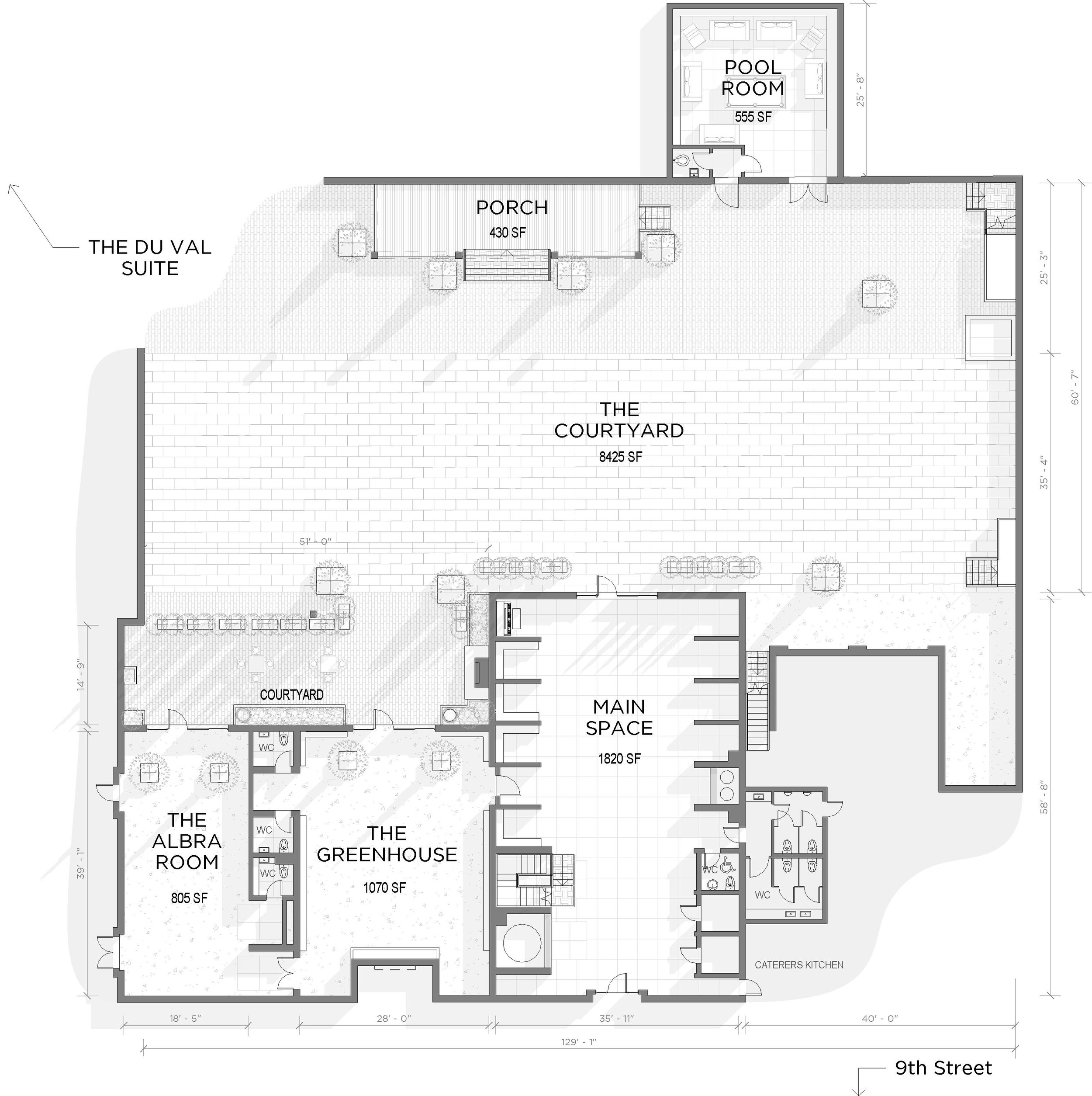
The foundry is a 19th century building that has been meticulously restored to showcase its industrial character and stunning proportions. Adaptable for many uses and available to rent for weddings, corporate events, launch parties, bar and bat mitzvahs, film, video and photo shoots.
The foundry interior boasts 3,000+ square feet of raw space with a lush outdoor courtyard, rooftop terrace with views of the manhattan skyline, indoor greenhouse and fully equipped industrial kitchen.
Take a virtual tour below
FLOOR PLANS
Download THE FULL PDF SET HERE
The Foundry is located at 42-38 Ninth Street, Long Island City, NY 11101
More information at www.thefoundry.info
